208 CAPE HARBOUR LOOP BRADENTON FL 34212
Courtesy of
- Listing Office: LPT REALTY, LLC
- Status: Active
- MLS ID: MFRA4684250
Description
-
Description:
One or more photo(s) has been virtually staged. PRICE DROP!! Come and see this corner unit, with an amazing view!
Show all description
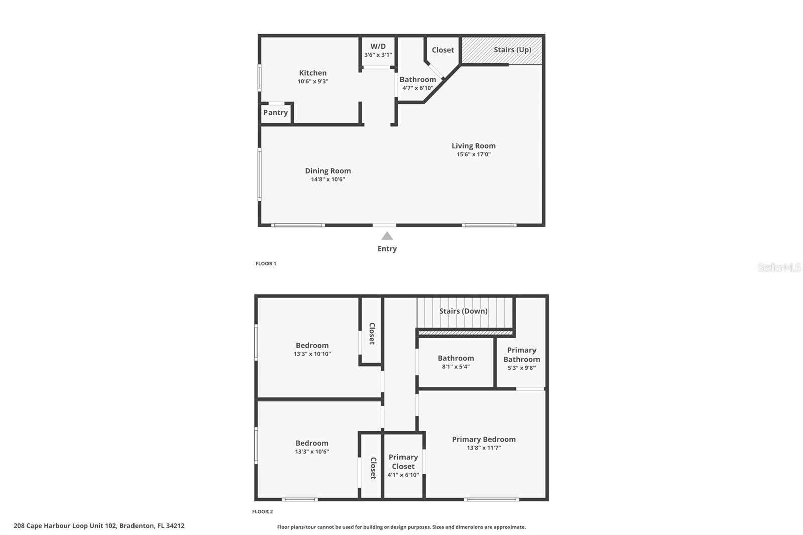
One or more photos have been virtually staged. Welcome to Lighthouse Cove at Heritage Harbour! This charming 3-bedroom, 2.5 bathroom corner unit offers the perfect location that overlooks a beautiful pond. Enjoy watching the perfect Florida sunsets, and many wild birds just outside your front door. Roof was replaced in 2024/2025. New AC was put in 3/2023 and has been serviced twice a year since installation. FULL size washer/dryer was put in 7/22. This home is perfectly located close enough to Bennett Park, Costco, Target, gyms and many restaurants that you could ride your bike or walk to. In addition, it is very close to SR 64 and I75 which can get you to University Town Center, St. Pete, Tampa, I-4, or our beautiful beaches very conveniently. There is all new luxury vinyl flooring in the dining and living rooms. Fresh paint all downstairs as well as the primary bedroom. The 3 bedrooms and 2 full bathrooms are located on the 2nd story, while the kitchen, dining room, living room, half bathroom, and laundry are located on the first floor. The kitchen has corian solid counters and includes a convenient pass-through to the dining room. The primary bedroom includes a walk in closet. The second bathroom has a shower/tub combo. The half bath has an extra storage closet, utilizing under the stairwell. The community benefits include a beautiful community pool, a park, playground, baseball field, a long walking path around the lake, a dog park and disc golf, making this a perfect place to call home! Top-rated schools are another great plus to making this your new home! - Virtual Tour: https://www.zillow.com/view-imx/ea42b764-be2d-449a-885b-f3a620c46220?initialViewType=pano
Video
- VirtualTourURLUnbranded: https://www.zillow.com/view-imx/ea42b764-be2d-449a-885b-f3a620c46220?initialViewType=pano
Basics
- Bathrooms Half: 1
- Date added: Added 1 hour ago
- Category: Townhouse
- Type: Residential
- Bedrooms: 3
- Bathrooms: 3
- Half baths: 1
- Area, sq ft: 1200 sq ft
- Lot size, sq ft: 76142 sq ft
- Year built: 2007
- UnitNumber: 102
- SubdivisionName: THE TWNHMS AT LIGHTHOUSE COVE VI
Location
- CountyOrParish: Manatee
- City / Department: BRADENTON
Location Details
- Elementary School: Freedom Elementary
- Middle Or Junior School: Carlos E. Haile Middle
- High School: Parrish Community High
Property Features
- Interior Features: Ceiling Fans(s), Living Room/Dining Room Combo, Open Floorplan, PrimaryBedroom Upstairs, Solid Surface Counters, Thermostat, Walk-In Closet(s), Window Treatments
- Appliances: Dryer, Electric Water Heater, Microwave, Range, Refrigerator, Washer
- Flooring: Carpet, Laminate, Luxury Vinyl, Tile
- Laundry Features: Inside
- Pool Features: Gunite, In Ground
- Waterfront YN: Yes
- Waterfront Features: Pond
- Pets Allowed: Number Limit, Size Limit, Yes
- Exterior Features: Lighting, Private Mailbox, Sidewalk
- Roof: Shingle
- Window Features: Blinds
- Water Source: Private
- Sewer: Public Sewer
- Cooling: Central Air
- Heating: Central
- Furnished: Unfurnished
Property Details
- Subdivision Name: THE TWNHMS AT LIGHTHOUSE COVE VI
- Direction Faces: Southwest
- Builder Name: Lennar
- Construction Materials: Block, Stucco
Association Information
- Association YN: Yes
- Association Fee: 1076
- Association Fee Frequency: Quarterly
- Association Fee Includes: Pool, Escrow Reserves Fund, Maintenance Structure, Maintenance Grounds, Maintenance, Management, Pest Control, Recreational Facilities, Sewer, Trash, Water
- Community Features: Pool
Fees&Taxes
- Tax Year: 2024
- Tax Annual Amount: $3,115
- Tax Other Annual Assessment Amount: 470
Amenities & Features
- Waterfront available: Yes
- GarageYN: No
- AttachedGarageYN: No
- FireplaceYN: No
- PoolPrivateYN: No
- Cooling: Central Air
- CommunityFeatures: Pool
- WindowFeatures: Blinds
- ExteriorFeatures: Lighting, Private Mailbox, Sidewalk
- PoolFeatures: Gunite, In Ground
- Utilities: Cable Available, Electricity Connected, Public, Water Connected
- Features:
- Amenities:
