HIGHLAND STREET ST PETERSBURG FL 33705
Courtesy of
- Listing Office: PREMIER SOTHEBYS INTL REALTY
- Status: Active
- MLS ID: MFRTB8424812
Description
-
Description:
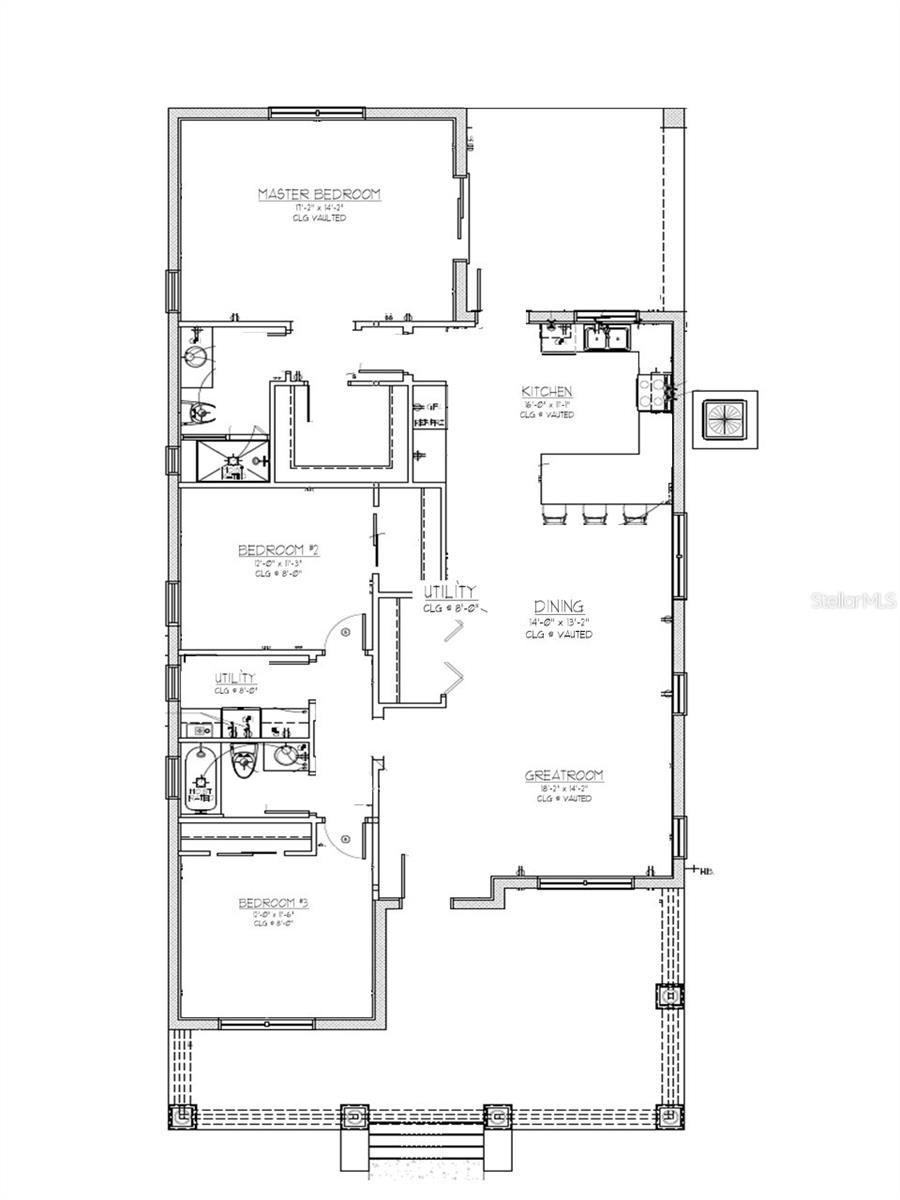
Pre-Construction. To be built. In the heart of South St. Petersburg, a traditional bungalow-style 1,650-square-foot single-family, one-story, block exterior construction, three bedrooms, two-bath home, just minutes south of St. Petersburg’s vibrant downtown. Enjoy quick access to world-class restaurants, the Dali and James Museums, Tropicana Field, theatres, schools, hospitals, waterfront parks and the Pier. World-class St. Pete beaches are just a short drive to the west. Spend evenings sitting on the large front porch conversing with friends and neighbors. Guests enter your home where they will be greeted by the sought-after spacious open floor plan, featuring vaulted ceilings in the great room that continue through the dining area to the kitchen complete with an island featuring a granite surface. Enjoy cooking in your kitchen featuring shaker cabinetry with soft-close drawers, tile backsplash, pot filler over the stove, granite countertops and your choice of appliance colors. Your home will enjoy abundant natural light provided by the many hurricane-rated windows throughout the house. The large primary bedroom has an en-suite bath with large walk-in closet. Two additional bedrooms with remote-controlled ceiling fans complete the sleeping quarters. There are lots of storage options such as a closet/bar in the great room, pantry in the kitchen and a laundry room. A tall wood perimeter fence will ensure privacy while you barbecue and entertain in your backyard sanctuary.
Show all description
Basics
- Bathrooms Half: 0
- Date added: Added 3 months ago
- Category: Single Family Residence
- Type: Residential
- Bedrooms: 3
- Bathrooms: 2
- Half baths: 0
- Area, sq ft: 1686 sq ft
- Lot size, sq ft: 6250 sq ft
- Year built: 2025
- SubdivisionName: WELSH'S LAKEVIEW
Location
- CountyOrParish: Pinellas
- City / Department: ST PETERSBURG
Property Features
- Interior Features: Kitchen/Family Room Combo, Open Floorplan, Thermostat, Vaulted Ceiling(s), Walk-In Closet(s)
- Appliances: Dishwasher, Disposal, Exhaust Fan, Microwave, Range Hood, Refrigerator
- Flooring: Ceramic Tile, Laminate
- Laundry Features: Laundry Room
- Exterior Features: Sidewalk
- Fencing: Wood
- Roof: Shingle
- Water Source: Public
- Sewer: Public Sewer
- Cooling: Central Air
- Heating: Central
Property Details
- Subdivision Name: WELSH'S LAKEVIEW
- Direction Faces: East
- New Construction YN: Yes
- Construction Materials: Block
Fees&Taxes
- Tax Year: 2024
- Tax Annual Amount: $1,235
Amenities & Features
- Waterfront available: No
- GarageYN: No
- AttachedGarageYN: No
- FireplaceYN: No
- PoolPrivateYN: No
- Cooling: Central Air
- ExteriorFeatures: Sidewalk
- Utilities: Water Connected
- Features:
- Amenities:
