655 42ND AVENUE ST PETERSBURG FL 33703
Courtesy of
- Listing Office: DALTON WADE INC
- Status: Active
- MLS ID: MFRTB8469420
Description
-
Description:
Price Improvement – Rare Double Lot Opportunity in Greater Allendale! Subdividable + ADU Zoning (NT-1)
Show all description
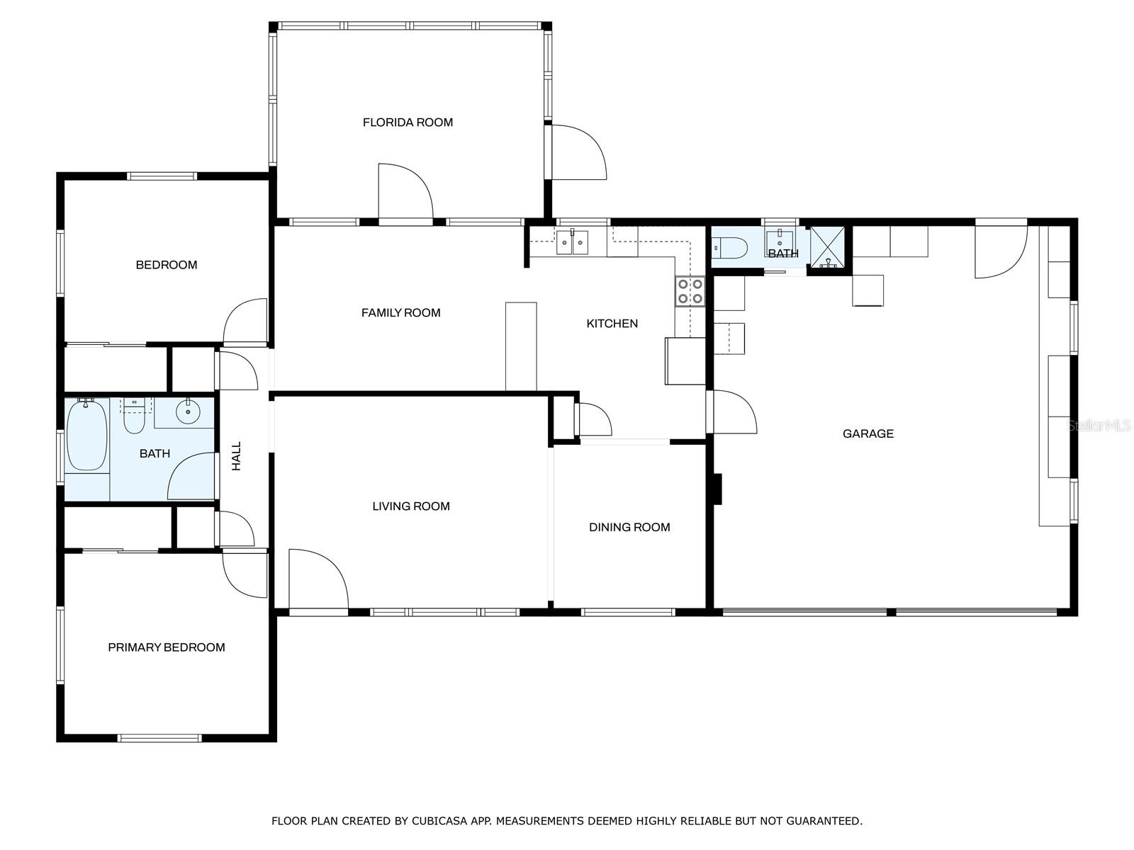
Now offered at an improved price, this exceptional property in the highly sought-after, high-and-dry Greater Allendale neighborhood combines immediate livability with outstanding redevelopment potential. This well-maintained concrete block home features a bright and inviting interior, an enclosed Florida Room, and an attached two-car garage complete with a full bathroom and laundry area.
Recent updates include a new HVAC system (2024), water heater (2023), impact-resistant windows, and an updated kitchen with granite countertops and stainless steel appliances.
Situated on an oversized 0.28-acre lot (90 x 137), the property is surrounded by mature oak, mango, and papaya trees, with a well-water irrigation system already in place.
Zoned NT-1, this rare double lot offers the potential to subdivide into two oversized buildable parcels, each allowing for a single-family residence plus an Accessory Dwelling Unit (ADU). A prime opportunity for homeowners, investors, and developers looking for flexibility, income potential, and long-term value.
Properties with this combination of lot size, zoning, location, and future upside rarely come available in Allendale Oaks. Live in it, hold it, expand it, or develop—it’s an opportunity you don’t want to miss.
Basics
- Bathrooms Half: 0
- Date added: Added 3 months ago
- Category: Single Family Residence
- Type: Residential
- Bedrooms: 2
- Bathrooms: 2
- Half baths: 0
- Area, sq ft: 1298 sq ft
- Lot size, sq ft: 12330 sq ft
- Year built: 1958
- SubdivisionName: BAY STATE SUB
- GarageSpaces: 2
Location
- CountyOrParish: Pinellas
- City / Department: ST PETERSBURG
Location Details
- Elementary School: John M Sexton Elementary-PN
- Middle Or Junior School: Meadowlawn Middle-PN
- High School: Northeast High-PN
Property Features
- Interior Features: Ceiling Fans(s)
- Appliances: Dishwasher, Dryer, Microwave, Range, Refrigerator, Washer
- Flooring: Terrazzo, Tile, Wood
- Laundry Features: In Garage
- Parking Features: Bath In Garage, Oversized
- Garage YN: Yes
- Attached Garage YN: Yes
- Garage Spaces: 2
- Exterior Features: Other
- Roof: Shingle
- Vegetation: Fruit Trees, Mature Landscaping, Oak Trees
- Water Source: Public
- Sewer: Public Sewer
- Cooling: Central Air
- Heating: Electric
- Furnished: Unfurnished
Property Details
- Subdivision Name: BAY STATE SUB
- Direction Faces: South
- Construction Materials: Block
Fees&Taxes
- Tax Year: 2025
- Tax Annual Amount: $1,406
Amenities & Features
- Waterfront available: No
- GarageYN: Yes
- AttachedGarageYN: Yes
- FireplaceYN: No
- PoolPrivateYN: No
- Cooling: Central Air
- ExteriorFeatures: Other
- Utilities: Electricity Connected, Water Connected
- Features:
- Amenities:
Building Details
- ArchitecturalStyle: Florida
- NewConstructionYN: No
- Heating: Electric
- Exterior material: Block
- Roof: Shingle
- Parking: Bath In Garage, Oversized
