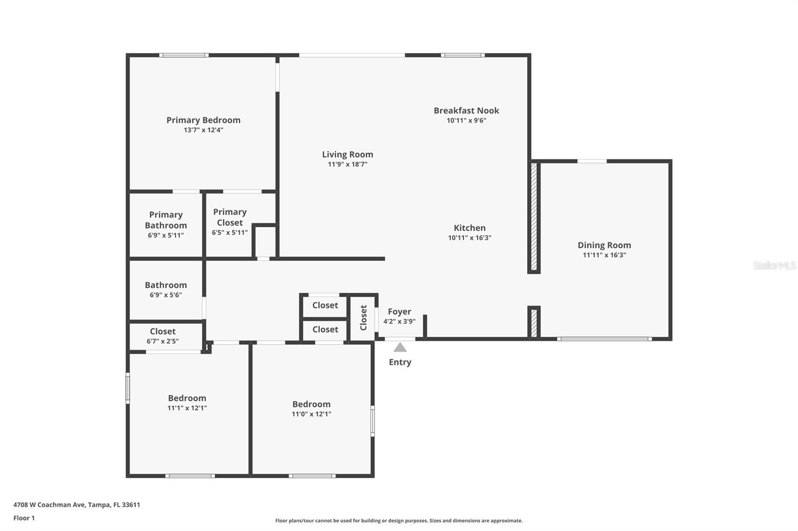
4708 COACHMAN AVENUE TAMPA FL 33611
- 3 beds
- 2 baths
- 1640 sq ft
Courtesy of
- Listing Office: EXP REALTY LLC
- Status: Active
- MLS ID: MFRTB8413243
Description
-
Description:
Discover the perfect blend of mid-century charm and modern luxury, nestled in Tampa’s desirable 33611 neighborhood. Updated inside, this home features sleek luxury vinyl plank flooring throughout, raised-panel kitchen cabinets topped with gleaming granite counters, and stainless steel appliances. The bright, open living and dining areas are bathed in natural light through classic picture-frame windows and large glass sliding doors that seamlessly connect to an expansive, fenced backyard complete with a generous deck and mature shade trees. Spa-inspired bathrooms have been fully remodeled with premium fixtures and contemporary finishes, and all three spacious bedrooms, including the primary suite, offer comfort and style. For your peace of mind, the seller has already completed every inspection, roof, 4-point, and more. All reports are available for review. With central HVAC, a flexible floorplan offering room for expansion, and a turnkey presentation just minutes from downtown Tampa, Seminole Heights dining, and South Tampa’s shops and parks, this Coachman Avenue gem is ready for you to move right in and live beautifully. Schedule your private tour today!
Show all description - Virtual Tour: https://www.zillow.com/view-imx/dd63936e-6322-444e-a8d5-c64789ead1dd?setAttribution=mls&wl=true&initialViewType=pano&utm_source=dashboard
Video
Basics
- Bathrooms Half: 0
- Date added: Added 1 day ago
- Category: Single Family Residence
- Type: Residential
- Bedrooms: 3
- Bathrooms: 2
- Half baths: 0
- Floors: 1
- Area, sq ft: 1640 sq ft
- Lot size, sq ft: 8241 sq ft
- Year built: 1959
- SubdivisionName: GUERNSEY ESTATES ADD
Location
- CountyOrParish: Hillsborough
- City / Department: TAMPA
Property Features
- Interior Features: Ceiling Fans(s)
- Appliances: Dishwasher, Microwave, Range, Refrigerator
- Flooring: Luxury Vinyl
- Laundry Features: Inside, Laundry Room
- Parking Features: Driveway
- Exterior Features: Other
- Roof: Shingle
- Water Source: Public
- Sewer: Public Sewer
- Cooling: Central Air
- Heating: Central, Electric
- Furnished: Unfurnished
Property Details
- Subdivision Name: GUERNSEY ESTATES ADD
- Direction Faces: North
- Construction Materials: Block, Concrete
Fees&Taxes
- Tax Year: 2024
- Tax Annual Amount: $5,529
Amenities & Features
- Waterfront available: No
- GarageYN: No
- AttachedGarageYN: No
- FireplaceYN: No
- PoolPrivateYN: No
- Cooling: Central Air
- ExteriorFeatures: Other
- Utilities: Other
- Features:
- Amenities:
