2634 SOUTH DRIVE CLEARWATER FL 33759
Courtesy of
- Listing Office: DALTON WADE INC
- Status: Active
- MLS ID: MFRW7883268
Description
-
Description:
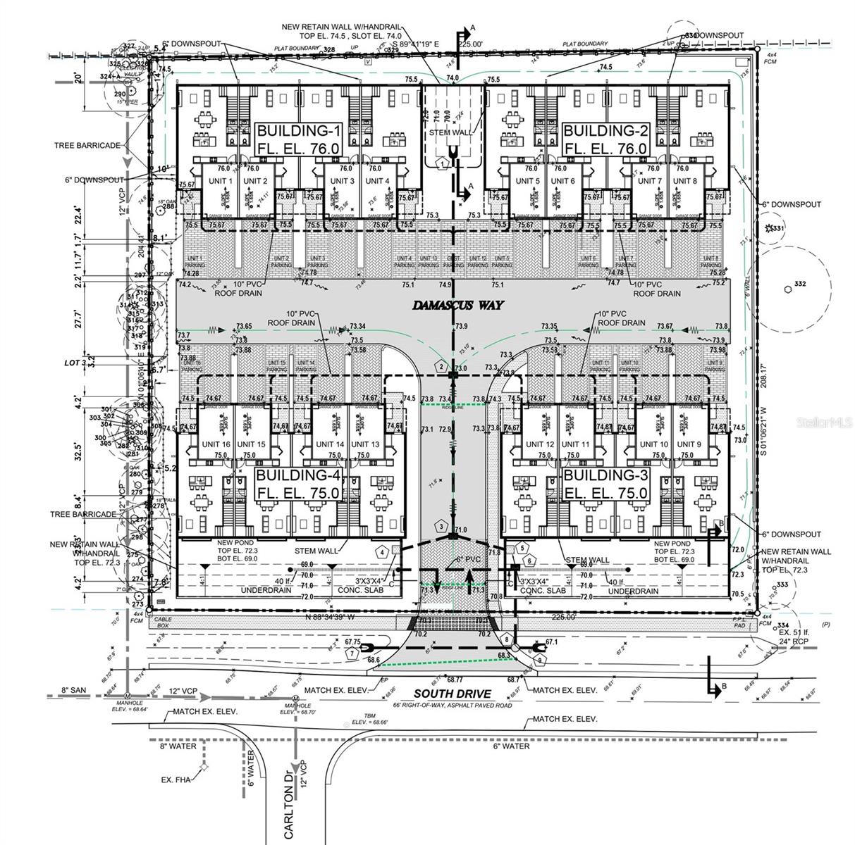
Rare Clearwater build-to-rent / development opportunity with approved developmental order and plans available for a 16-townhome project (drawings and plan set available for buyer review). The existing property includes a home and a shop—however, the highest and best use is the land and future buildout for long-term rentals or resale. Prime central Clearwater location with quick access to US-19 and major commuter corridors. Convenient for tenants and investors alike: approximately 10 miles to St. Pete–Clearwater International Airport (PIE) and about 18–19 miles to Tampa International Airport (TPA) , plus an easy drive to Clearwater’s world-famous Gulf beaches, shopping, dining, and employment hubs. Ideal for investors seeking a shovel-ready (plan-set in hand) townhome rental community in one of Tampa Bay’s most in-demand submarkets. Buyer to verify zoning, density, approvals/vesting status, impact fees, utilities, and all development requirements with the City/County. All information regarding zoning, approvals, density, and development potential is believed to be accurate but is not guaranteed. Buyer is responsible for verifying all details, approvals, and requirements with the appropriate governing authorities and completing their own due diligence. Images are conceptual and/or AI-generated renderings intended to illustrate potential buildout and are not photographs of existing improvements on the property.
Show all description - Virtual Tour: https://www.propertypanorama.com/instaview/stellar/W7883268
Video
- VirtualTourURLUnbranded: https://www.propertypanorama.com/instaview/stellar/W7883268
Basics
- Bathrooms Half: 1
- Date added: Added 3 weeks ago
- Category: Single Family Residence
- Type: Residential
- Bedrooms: 2
- Bathrooms: 2
- Half baths: 1
- Area, sq ft: 1000 sq ft
- Lot size, sq ft: 46409 sq ft
- Year built: 1959
- SubdivisionName: EHLE SUB
- GarageSpaces: 3
Location
- CountyOrParish: Pinellas
- City / Department: CLEARWATER
Property Features
- Interior Features: Ceiling Fans(s)
- Appliances: Range, Refrigerator
- Flooring: Carpet
- Laundry Features: None
- Garage YN: Yes
- Garage Spaces: 3
- Carport YN: Yes
- Carport Spaces: 3
- Exterior Features: None
- Roof: Shingle
- Water Source: Public
- Sewer: Public Sewer
- Cooling: Central Air
- Heating: Electric
- Furnished: Unfurnished
Property Details
- Subdivision Name: EHLE SUB
- Direction Faces: South
- Construction Materials: Block
Fees&Taxes
- Tax Year: 2025
- Tax Annual Amount: $9,728
Amenities & Features
- Waterfront available: No
- GarageYN: Yes
- AttachedGarageYN: No
- FireplaceYN: No
- PoolPrivateYN: No
- Cooling: Central Air
- ExteriorFeatures: None
- Utilities: Public
- Features:
- Amenities:
