1775 OLD TITUSVILLE ROAD DELTONA FL 32725
Courtesy of
- Listing Office: EXP REALTY LLC
- Status: Active
- MLS ID: MFRO6374690
Description
-
Description:
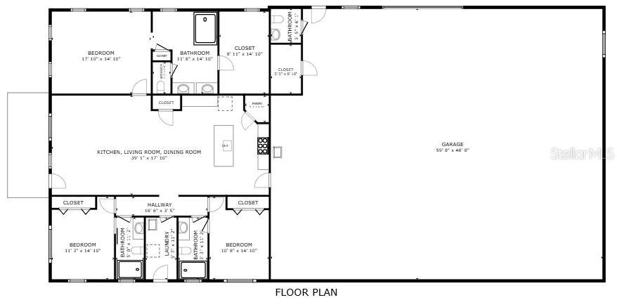
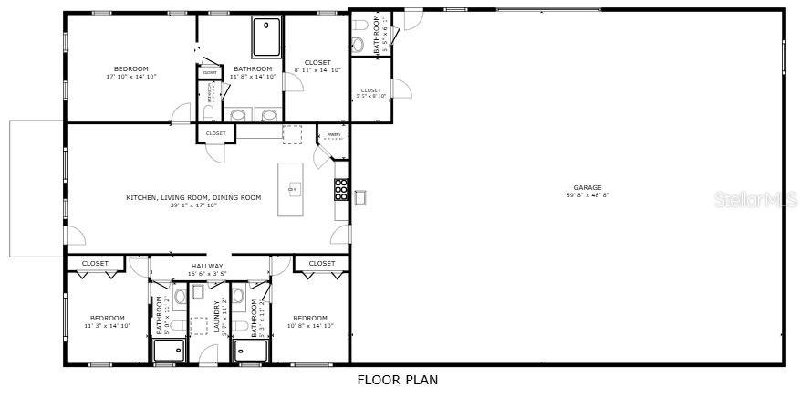
Luxury Barndominium (5000 sqft, 50’x100’) with three(3) Master bedrooms, Garage (3000 sqft) with Car-lift in a NO-HOA community. Built in 2023, this custom-made barndominium offers refined modern living on 2.5 fully fenced acres, combining upscale finishes, open-concept design, and unmatched functionality. This beautiful home features 2,090 sq ft of living space with three(3) spacious Master bedrooms, ceilings fans in all rooms, extra spacious garage (3000 sqft) with bathroom and an air-conditioned office (8x12ft). The kitchen and dining area are highlighted by a 19-foot high ceilings, upgraded California-style quartz countertops, 42 inch tall cabinets and a 36-inch gas range with six burners, ideal for both everyday living and entertaining. Porcelain tile flooring flows throughout the home, complemented by a two-door Samsung refrigerator, a reverse-osmosis system at the kitchen sink, gas water heater, gas dryer, water softener for the whole house with 3 layer filtration, 500-gallon propane tank, a car lift in garage, and 4-ton Dual Zone Control heat pump system. Garage walls are 16’ high, ideal for the addition of a loft or attic.
Show all description
A true highlight of this property is the approximately 3,000 sq ft oversized garage with bathroom, capable of accommodating up to 10 vehicles. The garage features are 16’ high walls, a 12’ x 12’ door, a Titan PREMIER Series 9,000-lb clear-floor 2-post lift, and an air-conditioned office with a half bath, making it ideal for car collectors, hobbyists, or live-work use. Bring your RV, boat, toys, or business ideas. This one is built for flexibility, space, and modern comfort. Offering privacy, space, and modern luxury, this one-of-a-kind property delivers a rare opportunity to own a high-quality barndominium with both lifestyle appeal and exceptional versatility. - Virtual Tour: https://youtu.be/8ElHDHudrCs?si=TTqu-WnNX7O7OFba
Video
- Virtual tour: https://www.propertypanorama.com/instaview/stellar/O6374690
- VirtualTourURLUnbranded: https://youtu.be/8ElHDHudrCs?si=TTqu-WnNX7O7OFba
Basics
- Bathrooms Half: 1
- Date added: Added 2 hours ago
- Category: Single Family Residence
- Type: Residential
- Bedrooms: 3
- Bathrooms: 4
- Half baths: 1
- Area, sq ft: 2090 sq ft
- Lot size, sq ft: 109453 sq ft
- Year built: 2023
- SubdivisionName: ACREAGE
- GarageSpaces: 10
Location
- CountyOrParish: Volusia
- City / Department: DELTONA
Property Features
- Interior Features: Ceiling Fans(s), Living Room/Dining Room Combo
- Appliances: Dishwasher, Disposal, Dryer, Gas Water Heater, Refrigerator, Water Softener
- Flooring: Tile
- Laundry Features: Gas Dryer Hookup
- Garage YN: Yes
- Attached Garage YN: Yes
- Garage Spaces: 10
- Exterior Features: None
- Roof: Metal
- Water Source: Well
- Sewer: Septic Tank
- Cooling: Central Air
- Heating: Electric, Natural Gas
- Furnished: Unfurnished
Property Details
- Subdivision Name: ACREAGE
- Direction Faces: North
- Construction Materials: Metal Frame
Fees&Taxes
- Tax Year: 2025
- Tax Annual Amount: $9,630
Amenities & Features
- Waterfront available: No
- GarageYN: Yes
- AttachedGarageYN: Yes
- FireplaceYN: No
- PoolPrivateYN: No
- Cooling: Central Air
- ExteriorFeatures: None
- Utilities: Electricity Available
- Features:
- Amenities:
Building Details
- NewConstructionYN: No
- Heating: Electric, Natural Gas
- Exterior material: Metal Frame
- Roof: Metal
