131 BLUFF VIEW DRIVE BELLEAIR BLUFFS FL 33770
Courtesy of
- Listing Office: CHARLES RUTENBERG REALTY INC
- Status: Active
- MLS ID: MFRTB8429887
Description
-
Description:
Built with concrete, US Steel, and metal studs, Port Belleair Building #4 is a standout in this complex passing the milestone structural inspection. This unique first-floor condo features a rare backyard outdoor space, available to only a few units in the complex. The owners have enjoyed being able to walk out their back door for an evening sunset overlooking the Belleair Causeway Bridge. With the outdoor area and spacious sunroom, it provides a relaxing oasis. Another great aspect of being on the first floor is that the community grills are in the common area just steps from your front door. You can also walk through the locked gate to an array of nearby restaurants, including options for date night, coffee and wine bars, breakfast spots, specialty sandwich shops, and ice cream parlors. This area offers exceptional convenience for those who enjoy being close to the beach without worrying about flooding, as this unit is situated 40 feet above sea level. As you step through the front door, the engineered hardwood floors grab your attention and it pulls your eyes through the condo. The kitchen is a true showstopper, featuring a sleek metallic silver backsplash, speckled granite countertops, and Samsung stainless steel appliances. Thoughtfully remodeled with storage in mind, it includes added cabinetry with three spacious drawers, a waste/recycle pullout, and a tall lower cabinet designed to accommodate large, heavy kitchen essentials like mixers and blenders. The condo is being SOLD FULLY FURNISHED, including a sofa, chairs, dining table, king adjustable bed, TVs, electric fireplace, dishes, silverware, cookware, and patio furniture. The two spacious bedrooms are thoughtfully positioned at opposite ends of the condo, ensuring privacy. The primary bedroom overlooks the quiet backyard and features a walk-in closet along with an en-suite bathroom equipped with safety bars and a walk-in shower. The guest bedroom, located at the front of the condo, features a wall-mounted queen-sized Murphy bed with built-in bookshelves on both sides, providing the perfect balance of functionality and space for a home office when guests are not visiting. A highly convenient GRANDFATHERED feature of this exclusive condo is the in-unit washer and dryer—an amenity available in only a select few units. With current regulations no longer permitting washers and dryers in the condos, most residents rely on shared, scheduled laundry rooms located on each floor. The condo offers generous storage, including two walk-in closets, a front closet, an exterior utility closet, and an additional large closet located in the first-floor corridor. A notable feature of this building is that the A/C handler and water heater are in the utility closet outside the front door, reducing the indoor noise typically associated with these appliances. Additionally, the A/C unit was newly installed in March 2024. The complex features two bicycle storage closets, grocery and luggage carts, and an assigned under-building parking space (103) located just two spots from the elevator. A convenient trash chute is also on the first floor. This 55+ active adult community has a host of amenities, including a geothermal heated pool that was recently resurfaced, clubhouse w/ kitchen, pool table, and picnic tables. View the virtual tour, schedule an in-person visit, and get ready to move in and embrace the beach lifestyle in the beautiful bluffs of Belleair.
Show all description - Virtual Tour: https://listings.bearkarryproductions.com/131-Bluff-View-Dr-APT-103-Belleair-Bluffs-FL-33770-USA-1?mls
Video
Basics
- Bathrooms Half: 0
- Date added: Added 3 months ago
- Category: Condominium
- Type: Residential
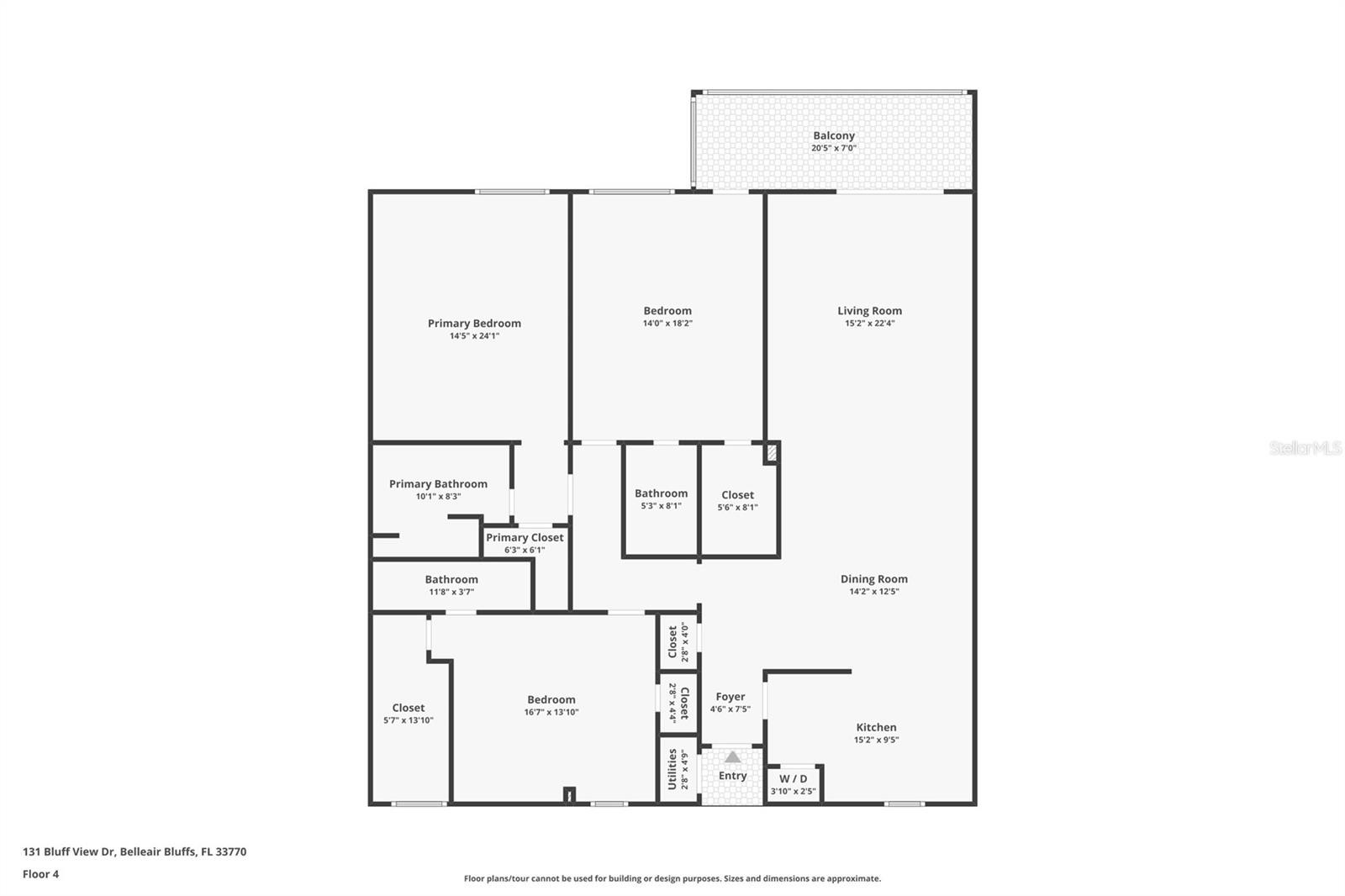
- Bedrooms: 2
- Bathrooms: 2
- Half baths: 0
- Floors: 4
- Area, sq ft: 1300 sq ft
- Lot size, sq ft: 44866 sq ft
- Year built: 1971
- UnitNumber: 103
- View: Park/Greenbelt, Water
- SubdivisionName: PORT BELLEAIR 4 CONDO
Location
- CountyOrParish: Pinellas
- City / Department: BELLEAIR BLUFFS
Property Features
- Interior Features: Ceiling Fans(s), Chair Rail, Crown Molding, Living Room/Dining Room Combo, Open Floorplan, Primary Bedroom Main Floor, Split Bedroom, Stone Counters, Thermostat, Tray Ceiling(s), Walk-In Closet(s), Window Treatments
- Appliances: Convection Oven, Dishwasher, Disposal, Dryer, Electric Water Heater, Microwave, Range, Refrigerator, Washer
- Flooring: Carpet, Hardwood, Tile
- Laundry Features: Common Area, Electric Dryer Hookup, Inside, Laundry Closet, Laundry Room, Same Floor As Condo Unit, Washer Hookup
- Patio And Porch Features: Enclosed, Rear Porch
- Pool Features: Gunite, Heated, In Ground, Lighting, Outside Bath Access
- Fireplace YN: Yes
- Fireplace Features: Electric
- Parking Features: Assigned, Covered, Ground Level, Guest, Reserved, Basement
- Carport YN: Yes
- Carport Spaces: 1
- Pets Allowed: No
- Exterior Features: Lighting, Outdoor Grill, Sidewalk, Storage
- Roof: Built-Up
- Security Features: Smoke Detector(s)
- Window Features: Aluminum Frames, Blinds, Double Pane Windows, Shades
- Vegetation: Trees/Landscaped
- View: Park/Greenbelt, Water
- Water Source: Public
- Sewer: Public Sewer
- Cooling: Central Air
- Heating: Central, Electric
- Furnished: Negotiable
Property Details
- Subdivision Name: PORT BELLEAIR 4 CONDO
- Direction Faces: North
- Construction Materials: Block, Brick, Concrete
Association Information
- Association YN: Yes
- Association Fee Frequency: Monthly
- Association Fee Includes: Cable TV, Common Area Taxes, Pool, Escrow Reserves Fund, Insurance, Internet, Maintenance Structure, Maintenance Grounds, Management, Private Road, Recreational Facilities, Sewer, Trash, Water
- Association Amenities: Cable TV, Elevator(s), Laundry, Pool, Storage, Vehicle Restrictions
- Community Features: Association Recreation - Owned, Buyer Approval Required, Clubhouse, Community Mailbox, Golf Carts OK, No Truck/RV/Motorcycle Parking, Pool, Sidewalks, Special Community Restrictions
Fees&Taxes
- Tax Year: 2024
- Tax Annual Amount: 0
Amenities & Features
- Waterfront available: No
- GarageYN: No
- AttachedGarageYN: No
- FireplaceYN: Yes
- PoolPrivateYN: No
- Cooling: Central Air
- Security Features: Smoke Detector(s)
- CommunityFeatures: Association Recreation - Owned, Buyer Approval Required, Clubhouse, Community Mailbox, Golf Carts OK, No Truck/RV/Motorcycle Parking, Pool, Sidewalks, Special Community Restrictions
- WindowFeatures: Aluminum Frames, Blinds, Double Pane Windows, Shades
- ExteriorFeatures: Lighting, Outdoor Grill, Sidewalk, Storage
- PoolFeatures: Gunite, Heated, In Ground, Lighting, Outside Bath Access
- Utilities: BB/HS Internet Available, Cable Connected, Electricity Connected, Public, Sewer Connected, Water Connected
- Features:
- Amenities:
