4625 LAMB AVENUE TAMPA FL 33629
Courtesy of
- Listing Office: COMPASS FLORIDA LLC
- Status: Active
- MLS ID: MFRT3509915
Description
-
Description:
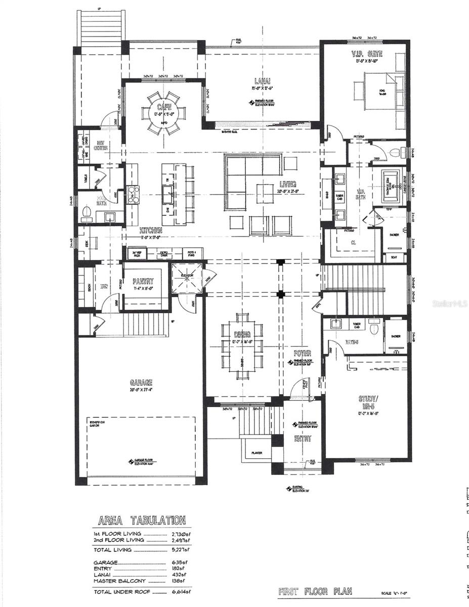
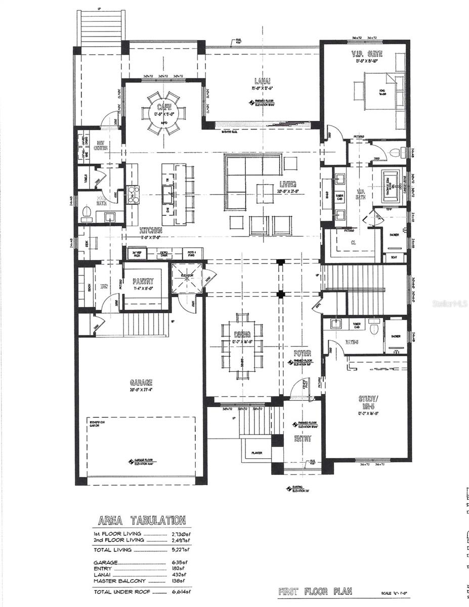
Under Construction. Welcome to the "Manchester", the newest design by Taralon Homes. Located in the popular Sunset Park neighborhood of South Tampa, this 4 bedroom, 4/2 bath floorplan features a modern Tudor elevation with a luxury flair, clean lines, tall window designs and a sand finish stucco exterior. This exceptional home boasts an open concept floor plan with spacious living and dining areas, saltwater pool and spa, travertine lanai, outdoor kitchen, elevator and 2 car garage. First floor features include a Study, Dining Room, Chef's kitchen with center island, Wolf and Subzero appliances, Living Room with gas fireplace, guest suite and mud room. Second floor includes an enviable primary retreat with luxurious bath, walk-in closet and private balcony, a Game Room and 2 additional bedrooms each with ensuite bath and walk-in closets. Tastefully appointed, this home features 7.5" Naturally Aged Medallion Collection wood flooring, 7" crown molding, insulated Low-E impact windows, Level 5 drywall finish on walls and ceilings, 2 tankless water heaters, solid core doors throughout, gas fireplace, 2 car garage and paver driveway. Located in a top-rated school district and just minutes to TIA, Downtown Tampa, restaurants, shopping, and Gulf beaches.
Show all description
Basics
- Bathrooms Half: 2
- Date added: Added 2 hours ago
- Category: Single Family Residence
- Type: Residential
- Bedrooms: 4
- Bathrooms: 6
- Half baths: 2
- Area, sq ft: 5227 sq ft
- Lot size, sq ft: 9159 sq ft
- Year built: 2025
- SubdivisionName: SUNSET PARK
- GarageSpaces: 2
Location
- CountyOrParish: Hillsborough
- City / Department: TAMPA
Location Details
- Elementary School: Dale Mabry Elementary-HB
- Middle Or Junior School: Coleman-HB
- High School: Plant-HB
Property Features
- Interior Features: Coffered Ceiling(s), Crown Molding, Eat-in Kitchen, Elevator, High Ceilings, In Wall Pest System, Kitchen/Family Room Combo, Open Floorplan, PrimaryBedroom Upstairs, Solid Wood Cabinets, Stone Counters, Thermostat, Walk-In Closet(s)
- Appliances: Bar Fridge, Built-In Oven, Dishwasher, Disposal, Gas Water Heater, Ice Maker, Microwave, Range, Range Hood, Refrigerator, Wine Refrigerator
- Flooring: Tile, Travertine, Wood
- Laundry Features: Inside, Laundry Room, Upper Level
- Pool Private YN: Yes
- Pool Features: Heated, In Ground, Lighting, Salt Water
- Spa YN: Yes
- Spa Features: Heated, In Ground
- Fireplace YN: Yes
- Fireplace Features: Family Room, Gas
- Parking Features: Driveway, Garage Door Opener, Oversized
- Garage YN: Yes
- Attached Garage YN: Yes
- Garage Spaces: 2
- Pets Allowed: Yes
- Exterior Features: French Doors, Lighting, Outdoor Kitchen, Rain Gutters, Sidewalk, Sliding Doors
- Fencing: Vinyl
- Roof: Shingle
- Security Features: Security System
- Window Features: Storm Window(s), Low-Emissivity Windows
- Water Source: Public
- Sewer: Public Sewer
- Cooling: Central Air, Zoned
- Heating: Central, Zoned
Property Details
- Subdivision Name: SUNSET PARK
- Direction Faces: South
- New Construction YN: Yes
- Builder Name: Taralon Homes
- Builder Model: Manchester
- Construction Materials: Block, Stucco, Frame
Association Information
- Community Features: Street Lights
Fees&Taxes
- Tax Year: 2023
- Tax Annual Amount: $6,853
Amenities & Features
- Waterfront available: No
- GarageYN: Yes
- AttachedGarageYN: Yes
- FireplaceYN: Yes
- PoolPrivateYN: Yes
- Cooling: Central Air, Zoned
- Spa Features: Heated, In Ground
- Security Features: Security System
- CommunityFeatures: Street Lights
- WindowFeatures: Storm Window(s), Low-Emissivity Windows
- ExteriorFeatures: French Doors, Lighting, Outdoor Kitchen, Rain Gutters, Sidewalk, Sliding Doors
- PoolFeatures: Heated, In Ground, Lighting, Salt Water
- Utilities: Cable Available, Electricity Connected, Natural Gas Connected, Public, Sewer Connected, Water Connected
- Features:
- Amenities:
