432 2ND AVENUE WILLISTON FL 32696
Courtesy of
- Listing Office: LPT REALTY, LLC
- Status: Active
- MLS ID: MFRTB8494037
Description
-
Description:
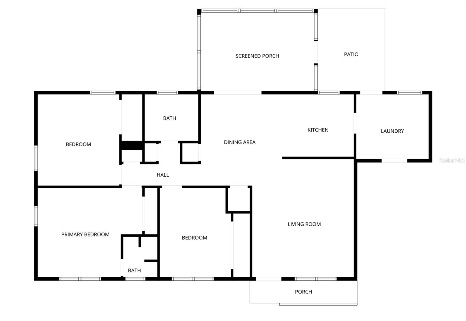
One or more photo(s) has been virtually staged. Welcome to this charming 3-bedroom, 2-bath home situated on just under half an acre in the heart of Williston. Built with solid block construction and a durable metal roof, this property offers the benefit of no HOA and no deed restrictions.
With 1,344 heated square feet and approximately 2,100 total square feet, the home provides additional functional space beyond the main living area. Inside, you will find terrazzo flooring throughout, with tile in the kitchen and bathrooms for easy maintenance. The kitchen features a cooktop, double oven, and natural gas connection, offering both functionality and efficiency. Ceiling fans are installed throughout the home.
The layout offers a comfortable flow from the living area into the kitchen and dining space, with a split-bedroom floor plan for added privacy. A Florida room located at the rear of the home provides additional space that can be used for relaxing, entertaining, or flexible living needs.
Additional features include a one-car carport and a dedicated laundry room with direct access to the kitchen. The property is serviced by city water and sewer.
Situated on 0.43 acres, the lot provides ample space for a variety of uses while still being conveniently located. The home is a short drive to both Gainesville and Ocala, offering access to shopping, dining, and everyday amenities. The surrounding area is also known for its proximity to natural springs and outdoor recreational opportunities.
This property presents a great opportunity for a primary residence, investment, or future customization.
Show all description - Virtual Tour: https://www.propertypanorama.com/instaview/stellar/TB8494037
Video
- VirtualTourURLUnbranded: https://www.propertypanorama.com/instaview/stellar/TB8494037
Basics
- Bathrooms Half: 0
- Date added: Added 2 hours ago
- Category: Single Family Residence
- Type: Residential
- Bedrooms: 3
- Bathrooms: 2
- Half baths: 0
- Area, sq ft: 1344 sq ft
- Lot size, sq ft: 18731 sq ft
- Year built: 1975
- View: City
- SubdivisionName: WARDELLS SUB
Location
- CountyOrParish: Levy
- City / Department: WILLISTON
Location Details
- Elementary School: Williston Elementary School-LV
- Middle Or Junior School: Williston Middle High School-LV
- High School: Williston Middle High School-LV
Property Features
- Interior Features: Ceiling Fans(s), Thermostat
- Appliances: Cooktop, Dryer, Refrigerator, Washer
- Flooring: Terrazzo, Tile
- Laundry Features: Inside, Laundry Room
- Patio And Porch Features: Covered, Enclosed, Rear Porch
- Carport YN: Yes
- Carport Spaces: 1
- Pets Allowed: Yes
- Exterior Features: Private Mailbox
- Roof: Metal
- View: City
- Water Source: Public
- Sewer: Public Sewer
- Cooling: Central Air
- Heating: Central
- Furnished: Unfurnished
Property Details
- Subdivision Name: WARDELLS SUB
- Direction Faces: South
- Construction Materials: Frame
Fees&Taxes
- Tax Year: 2025
- Tax Annual Amount: $3,437
Amenities & Features
- Waterfront available: No
- GarageYN: No
- AttachedGarageYN: No
- FireplaceYN: No
- PoolPrivateYN: No
- Cooling: Central Air
- ExteriorFeatures: Private Mailbox
- Utilities: Cable Connected, Natural Gas Connected, Public, Sewer Connected, Water Connected
- Features:
- Amenities:
