2070 29TH AVENUE ST PETERSBURG FL 33713
Courtesy of
- Listing Office: REALTY ONE GROUP SUNSHINE
- Status: Active
- MLS ID: MFRTB8413452
Description
-
Description:
The buyers' financing, unfortunately fell through. The seller is excited to move on to their next adventure. We freshened up the paint in the dining room. This could be your new home—an impeccably maintained two-bedroom, one-bath retreat just minutes from the highway, offering easy access to both downtown St. Petersburg and Tampa. This area is quickly transforming, attracting builders and showcasing a growing number of newly constructed homes. The seller has thoughtfully upgraded the property with premium features, including new Mitsubishi ductless heating and cooling systems, enhanced electrical components, new water heater, new dishwasher and a stackable Samsung washer and dryer. Cooking is a pleasure with the gas stove, perfect for culinary enthusiasts. Additionally, this home offers unique potential: contact the city to explore building a primary residence on the lot, with the existing home possibly serving as an accessory dwelling unit (ADU). Due to the current placement of the home on the property, it’s important to confirm local building guidelines and zoning regulations.
Show all description - Virtual Tour: https://www.propertypanorama.com/instaview/stellar/TB8413452
Video
- VirtualTourURLUnbranded: https://www.propertypanorama.com/instaview/stellar/TB8413452
Basics
- Bathrooms Half: 0
- Date added: Added 3 months ago
- Category: Single Family Residence
- Type: Residential
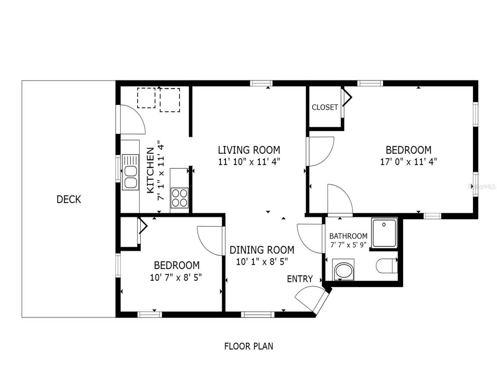
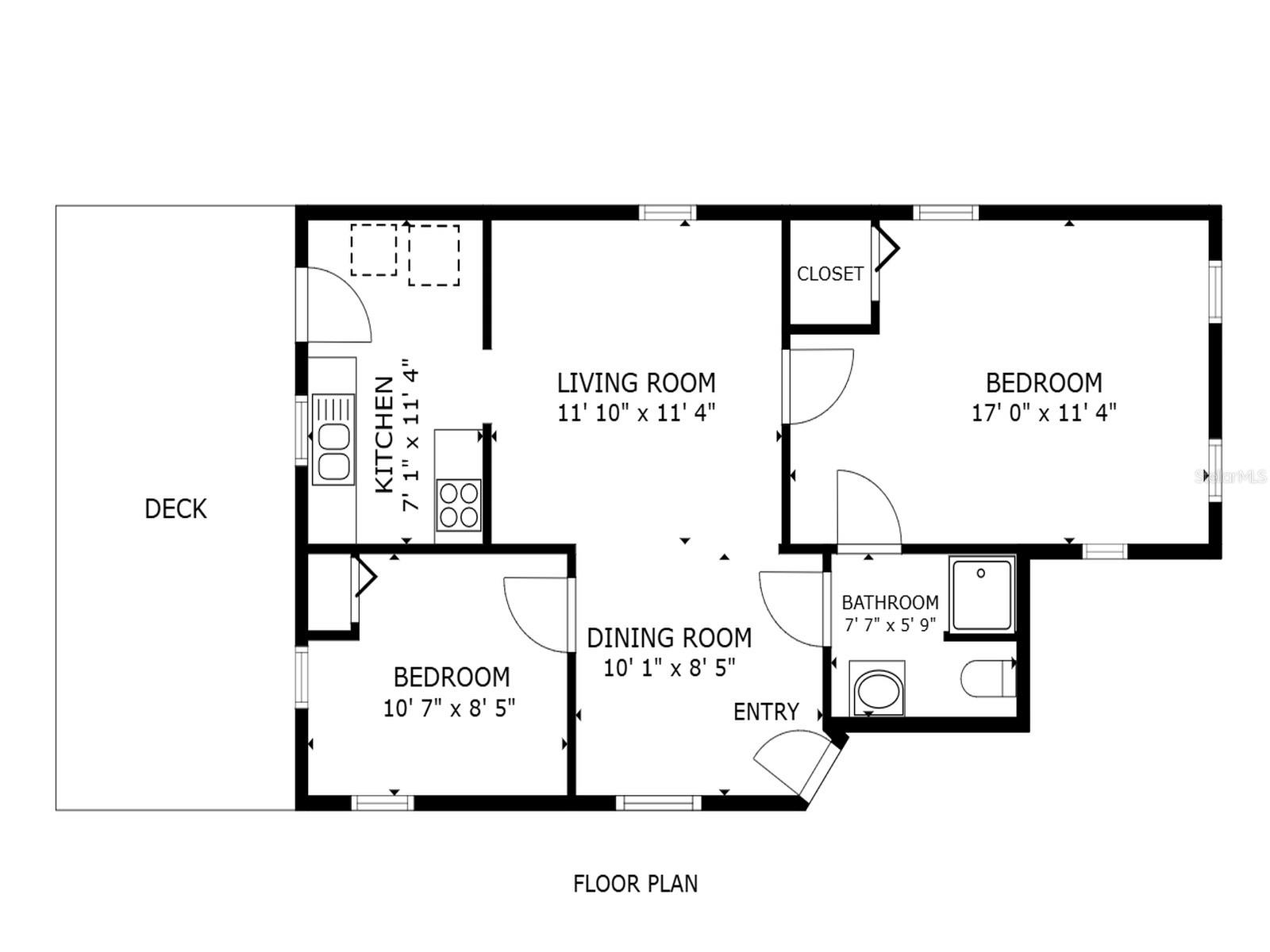
- Bedrooms: 2
- Bathrooms: 1
- Half baths: 0
- Floors: 1
- Area, sq ft: 734 sq ft
- Lot size, sq ft: 6368 sq ft
- Year built: 1928
- SubdivisionName: PINE CITY SUB REP
Location
- CountyOrParish: Pinellas
- City / Department: ST PETERSBURG
Location Details
- Elementary School: Woodlawn Elementary-PN
- Middle Or Junior School: Meadowlawn Middle-PN
- High School: St. Petersburg High-PN
Property Features
- Interior Features: Split Bedroom, Stone Counters, Vaulted Ceiling(s), Window Treatments
- Appliances: Dishwasher, Dryer, Microwave, Refrigerator, Washer
- Flooring: Carpet, Tile, Wood
- Laundry Features: In Kitchen
- Parking Features: Alley Access
- Pets Allowed: Cats OK, Dogs OK
- Exterior Features: Private Mailbox, Storage
- Roof: Shingle
- Water Source: Public
- Sewer: Public Sewer
- Cooling: Mini-Split Unit(s)
- Heating: Other
- Furnished: Unfurnished
Property Details
- Subdivision Name: PINE CITY SUB REP
- Direction Faces: North
- Construction Materials: Frame
Fees&Taxes
- Tax Year: 2024
- Tax Annual Amount: $3,621
Amenities & Features
- Waterfront available: No
- GarageYN: No
- AttachedGarageYN: No
- FireplaceYN: No
- PoolPrivateYN: No
- Cooling: Mini-Split Unit(s)
- ExteriorFeatures: Private Mailbox, Storage
- Utilities: Cable Available, Electricity Connected, Sewer Connected, Water Connected
- Features:
- Amenities:
Building Details
- ArchitecturalStyle: Bungalow
- NewConstructionYN: No
- Heating: Other
- Exterior material: Frame
- Roof: Shingle
- Parking: Alley Access
