16033 REDINGTON DRIVE REDINGTON BEACH FL 33708
Courtesy of
- Listing Office: REDFIN CORPORATION
- Status: Active
- MLS ID: MFRTB8405509
Description
-
Description:
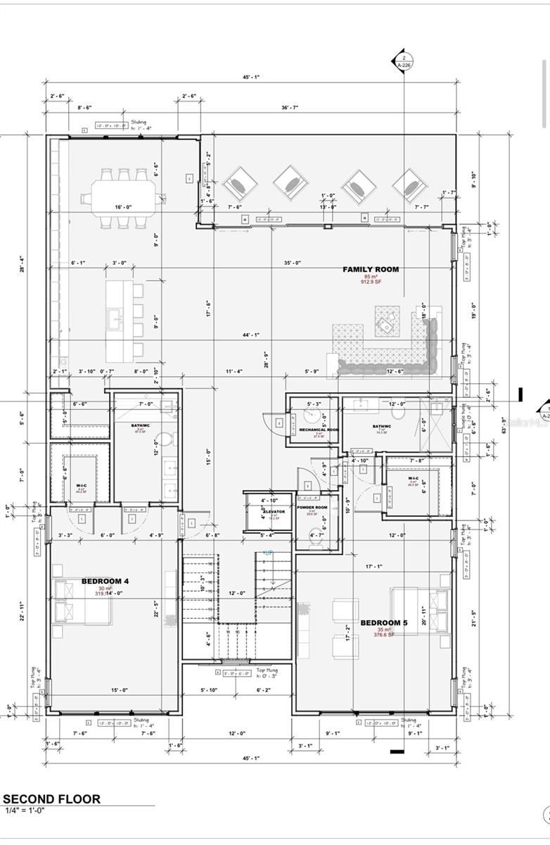
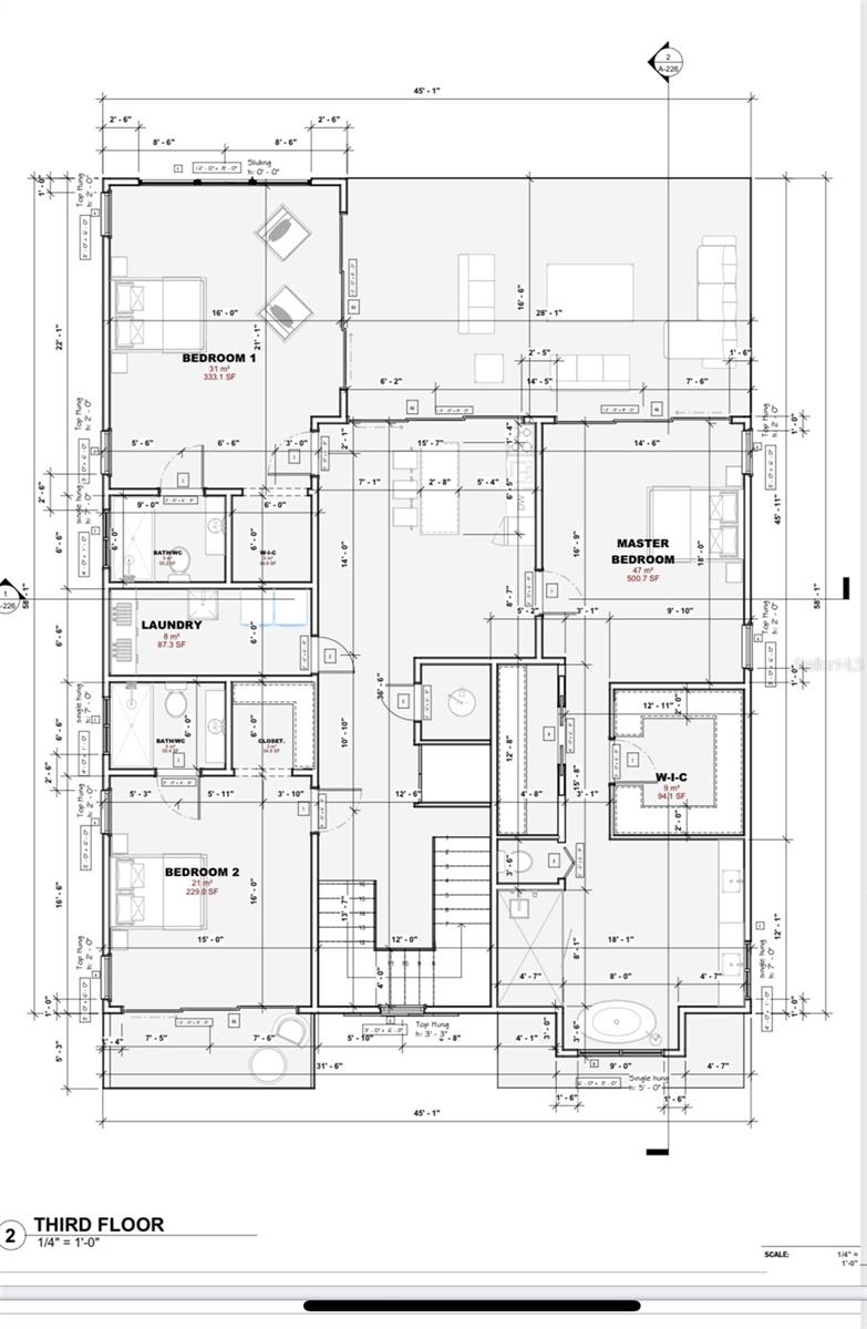
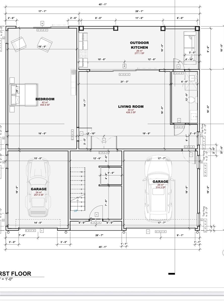
**Property being sold demolished; with permittable ready-to-build plans!** This Redington Beach home, nestled on a point lot with 87 feet of waterfrontage across nearly 8,000 square feet, offers unobstructed, breathtaking views of Boca Ciega Bay. Though significantly impacted by the 2024 hurricanes and being sold as is, its prime location is undeniable. Situated on picturesque Redington Drive, just four blocks from the beach, this property boasts yacht and sailboat parking availability. The seawall is fortified with a concrete cap, ensuring durability. Both sides of the property are securely gated and fenced through the backyard, with "wings" extending over the seawall, providing both privacy and protection. The expansive backyard also presents an ideal setting for an in-ground pool, allowing you to create your own waterfront oasis. Beyond the property's allure, Redington Beach enhances the coastal lifestyle with exclusive "residents only" Gulf-front beach access. This private amenity includes convenient parking, an outdoor shower, and comfortable seating, all for the enjoyment of its residents. The city further complements this vibrant community with access to basketball and shuffleboard courts, and a playground. This is an unparalleled opportunity to bring your vision to life and own a piece of paradise in one of the most desirable areas of the beaches.
Show all description
Basics
- Bathrooms Half: 0
- Date added: Added 4 months ago
- Category: Single Family Residence
- Type: Residential
- Bedrooms: 3
- Bathrooms: 2
- Half baths: 0
- Floors: 1
- Area, sq ft: 1401 sq ft
- Lot size, sq ft: 7331 sq ft
- Year built: 1951
- View: Water
- SubdivisionName: REDINGTON BEACH HOMES 2ND ADD
- GarageSpaces: 1
Location
- CountyOrParish: Pinellas
- City / Department: REDINGTON BEACH
Location Details
- Elementary School: Bauder Elementary-PN
- Middle Or Junior School: Seminole Middle-PN
- High School: Seminole High-PN
Property Features
- Interior Features: Crown Molding, Open Floorplan, Primary Bedroom Main Floor
- Appliances: Microwave
- Flooring: Concrete, Terrazzo, Tile
- Laundry Features: Other
- Waterfront YN: Yes
- Waterfront Features: Bay/Harbor
- Parking Features: Covered, Driveway
- Garage YN: Yes
- Attached Garage YN: Yes
- Garage Spaces: 1
- Exterior Features: Private Mailbox
- Roof: Shingle
- Security Features: Secured Garage/Parking
- Vegetation: Mature Landscaping
- View: Water
- Water Source: Public
- Sewer: Public Sewer
- Cooling: Central Air
- Heating: Central, Electric
Property Details
- Subdivision Name: REDINGTON BEACH HOMES 2ND ADD
- Direction Faces: Northeast
- Construction Materials: Block
Association Information
- Community Features: Street Lights
Fees&Taxes
- Tax Year: 2024
- Tax Annual Amount: $12,015
Amenities & Features
- Waterfront available: Yes
- GarageYN: Yes
- AttachedGarageYN: Yes
- FireplaceYN: No
- PoolPrivateYN: No
- Cooling: Central Air
- Security Features: Secured Garage/Parking
- CommunityFeatures: Street Lights
- ExteriorFeatures: Private Mailbox
- Utilities: Public, Sewer Connected, Underground Utilities, Water Connected
- Features:
- Amenities:
