6266 4TH AVENUE ST PETERSBURG FL 33707
Courtesy of
- Listing Office: COMPASS FLORIDA LLC
- Status: Active
- MLS ID: MFRTB8329271
Description
-
Description:
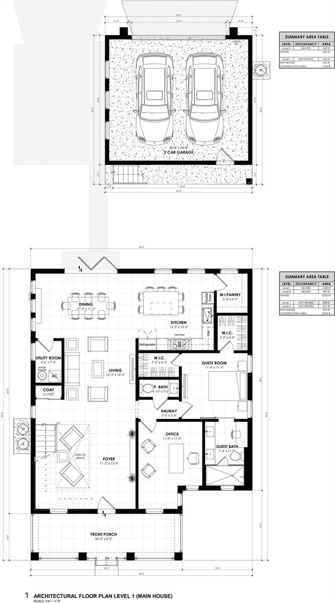
Pre-Construction. To be built. Introducing “The Bellingham” by Apple Tree Developers, located in West St. Pete in the desirable neighborhood of Pasadena Estates. This thoughtfully designed and meticulously crafted 2-story single-family home features over 2500 sqft in the impressive main house with 3 bedrooms all with en suite bathrooms, including a main floor bedroom that can be used as a 2nd primary bedroom, an office, and a convenient ½ bath off the main hallway. The smartly designed open floor plan features engineered hardwood floors with a seamless flow from the main entrance hall to the family room, kitchen, and dining area. The kitchen design is a showstopper with a large central island designed for easy entertaining with seating on 3 sides and a large walk-in pantry as well as ample counter space and cabinetry for storage. The bi-fold sliders off the rear of the family room create easy access to the rear garden that leads to the
Show all description
detached 2-car garage with 550 sqft of living space including 2 bedrooms, 2 full bathrooms, laundry, and a full kitchen accessory dwelling above. Perfect solution for multi-generational living, additional guest suites, or rental potential. The location in West St. Pete is ideal for easy access to the beach or less than 15 minutes from all the fun and excitement of Downtown St. Pete. The home is located in a non-flood zone—all backed by a stellar warranty program of 1, 2, and 10 years. Get up to 1% lender credit from our preferred lender to use toward closing costs or rate buydown.
Basics
- Bathrooms Half: 1
- Date added: Added 6 months ago
- Category: Single Family Residence
- Type: Residential
- Bedrooms: 5
- Bathrooms: 6
- Half baths: 1
- Area, sq ft: 3085 sq ft
- Lot size, sq ft: 6456 sq ft
- Year built: 2025
- SubdivisionName: PASADENA ESTATES
- GarageSpaces: 2
Location
- CountyOrParish: Pinellas
- City / Department: ST PETERSBURG
Property Features
- Interior Features: Ceiling Fans(s), Eat-in Kitchen, High Ceilings, Living Room/Dining Room Combo, Open Floorplan, PrimaryBedroom Upstairs, Solid Wood Cabinets, Stone Counters, Thermostat, Walk-In Closet(s)
- Appliances: Dishwasher, Microwave, Range, Refrigerator, Tankless Water Heater
- Flooring: Hardwood, Tile
- Laundry Features: Laundry Room
- Patio And Porch Features: Covered, Front Porch, Patio
- Parking Features: Alley Access
- Garage YN: Yes
- Garage Spaces: 2
- Exterior Features: Private Mailbox, Rain Gutters, Sliding Doors
- Fencing: Vinyl
- Roof: Shingle
- Window Features: Storm Window(s)
- Vegetation: Trees/Landscaped
- Water Source: Public
- Sewer: Public Sewer
- Cooling: Central Air
- Heating: Central
Property Details
- Subdivision Name: PASADENA ESTATES
- Direction Faces: North
- New Construction YN: Yes
- Construction Materials: Block, Stucco
Fees&Taxes
- Tax Year: 2024
- Tax Annual Amount: $3,235
Amenities & Features
- Waterfront available: No
- GarageYN: Yes
- AttachedGarageYN: No
- FireplaceYN: No
- PoolPrivateYN: No
- Cooling: Central Air
- WindowFeatures: Storm Window(s)
- ExteriorFeatures: Private Mailbox, Rain Gutters, Sliding Doors
- Utilities: Cable Available, Electricity Available, Sewer Available, Water Available
- Features:
- Amenities:
Building Details
- ArchitecturalStyle: Custom
- NewConstructionYN: Yes
- Heating: Central
- Exterior material: Block, Stucco
- Roof: Shingle
- Parking: Alley Access
