2469 TRADE WINDS DRIVE DUNEDIN FL 34698
- 4 beds
- 3 baths
- 2357 sq ft
Courtesy of
- Listing Office: RE/MAX REALTEC GROUP INC
- Status: Active
- MLS ID: MFRTB8435657
Description
-
Description:
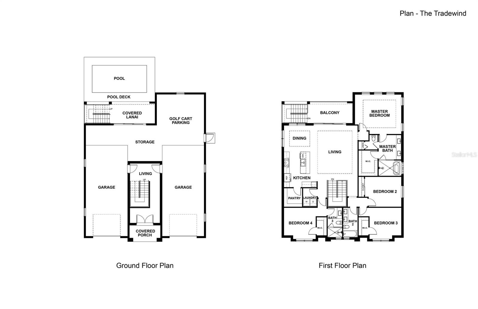
Pre-Construction. To be built. Welcome to brand new construction in delightful Dunedin!! Beautiful two-story home offers the perfect blend of modern design and coastal charm. Built by premier builder DiGiovanni Homes on a pool size home site and upgraded for the most discerning buyer! The first floor features a spacious two-car garage, golf cart parking and ample storage. The main living area upstairs boasts a true open concept floor plan and desirable great room layout. The living area is enormous and wide open to the gourmet kitchen with real wood cabinetry, designer finishes and stainless appliances. Elegant tray ceilings highlight the living and dining space as well as the primary suite. Special architectural accents add to the spacious vibe. The primary suite is a luxurious retreat with an indulgent rear balcony perfect for morning coffee or sunset cocktails. The spa-inspired ensuite boasts a large walk-in shower, water closet, double sinks and a walk-in closet. Endless upgrades throughout the home. Designer choices and magnificent finishes! Fabulous backyard is accented by a covered lanai. It is an ideal space to create your own private oasis! Plenty of room for a pool! A rare find... quality built, brand new construction in sought after Dunedin... the ultimate Florida lifestyle near to downtown and Dunedin's charming streets of restaurants, entertainment, breweries, shopping, endless festivals and of course the famed Gulf Beaches are nearby. Minutes to the Dunedin Causeway, Honeymoon Island and Dunedin Golf Club. Be the first to live in this beautiful home.
Show all description
Basics
- Bathrooms Half: 0
- Date added: Added 1 week ago
- Category: Single Family Residence
- Type: Residential
- Bedrooms: 4
- Bathrooms: 3
- Half baths: 0
- Area, sq ft: 2357 sq ft
- Lot size, sq ft: 6003 sq ft
- Year built: 2026
- SubdivisionName: BAYWOOD SHORES 1ST ADD
- GarageSpaces: 2
Location
- CountyOrParish: Pinellas
- City / Department: DUNEDIN
Location Details
- Elementary School: San Jose Elementary-PN
- Middle Or Junior School: Palm Harbor Middle-PN
- High School: Dunedin High-PN
Property Features
- Interior Features: High Ceilings, Open Floorplan, Solid Surface Counters, Solid Wood Cabinets, Thermostat, Tray Ceiling(s), Walk-In Closet(s)
- Appliances: Built-In Oven, Cooktop, Dishwasher, Gas Water Heater, Range Hood, Refrigerator, Tankless Water Heater
- Flooring: Carpet, Luxury Vinyl, Tile
- Laundry Features: Electric Dryer Hookup, Inside, Laundry Room, Washer Hookup
- Parking Features: Driveway
- Garage YN: Yes
- Attached Garage YN: Yes
- Garage Spaces: 2
- Pets Allowed: Yes
- Exterior Features: Rain Gutters, Sidewalk, Sliding Doors
- Roof: Metal, Shingle
- Security Features: Smoke Detector(s)
- Vegetation: Trees/Landscaped
- Water Source: Public
- Sewer: Public Sewer
- Cooling: Central Air
- Heating: Central, Electric
- Furnished: Unfurnished
Property Details
- Subdivision Name: BAYWOOD SHORES 1ST ADD
- Direction Faces: Northwest
- New Construction YN: Yes
- Builder Name: DiGiovanni Homes
- Construction Materials: Block, Stucco
Association Information
- Community Features: Deed Restrictions, Sidewalks, Street Lights
Fees&Taxes
- Tax Year: 2024
- Tax Annual Amount: $4,428
Amenities & Features
- Waterfront available: No
- GarageYN: Yes
- AttachedGarageYN: Yes
- FireplaceYN: No
- PoolPrivateYN: No
- Cooling: Central Air
- Security Features: Smoke Detector(s)
- CommunityFeatures: Deed Restrictions, Sidewalks, Street Lights
- ExteriorFeatures: Rain Gutters, Sidewalk, Sliding Doors
- Utilities: Cable Available, Electricity Connected, Natural Gas Connected, Phone Available, Public, Sewer Connected, Water Connected
- Features:
- Amenities:
